Газовый котёл BellaGas Premium One 28
Газовый котёл BellaGas Premium One 28
премиум 28 размеры
премиум 28 кнопки
wfp707ts5b9l4nkrta8syuf52j0l01upГазовый котёл BellaGas Premium One 28
| Тип камеры сгорания: | турбированный (закрытая) |
| Способ установки: | настенный |
кв. м: | 200-300 |
| Контуров: | 1 |
| Бренд: | BELLAGAS () |
Подробнее
BellaGas Premium One 28 газовый настенный котёл, мощность котла 24 кВт. Закрытая камера сгорания (турбированный), подключение дымохода 60/100 или 80/80 мм. Одноконтурный для отопления. Приготовление горячей воды возможно через внешний бойлер косвенного нагрева (опция). Котёл сделан в Республике Беларусь. В котле установлены запчасти Grundfos, Sit, Huba Control, Mtv gruop и другие. Первичный теплообменник из меди покрыт защитным слоем.
1. Мощность отопления: 28 кВт.
2. Одноконтурный: отопление.
3. Приготовление горячей воды: да, бойлер (опция).
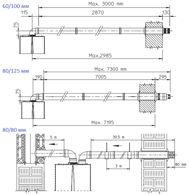
4. Закрытая камера сгорания: 60/100 или 80/80 мм.
5. Сделан в Республике Беларусь.
1. Газовый котёл BellaGas Premium 28
2. Дымоход коаксиальный 60/100 мм.
3. Комплект к бойлеру (встроен в котёл)
4. Датчик температуры в бойлер.
СТРАНА ПРОИЗВОДИТЕЛЬ.
Газовые котлы "BellaGas" производятся в Республике Беларусь с 2013 года. Производство оснащено самым современным оборудованием для диагностики и тестирования готовой продукции. Для производства газовых котлов используются, только, лучшие и проворные производители и поставщики комплектующих.
СОВМЕСТИМ С ЛЮБОЙ СИСТЕМОЙ ОТОПЛЕНИЯ.
Газовый котёл серии BellaGas Premium 28 может работать с любой системой отопления: радиаторное отопление, водяной тёплый пол или комбинированная система отопления. В системе отопления могут быть смонтированы любые радиаторы (чугунные, стальные, алюминиевые или биметаллические). В качестве теплоносителя может использоваться, так же "антифриз для системы отопления".
СОВРЕМЕННЫЙ ГАЗОВЫЙ КОТЁЛ.
Котёл BellaGas Premium 28 снабжён всеми необходимыми функциями контроля и регулирования, что обеспечивает максимальный комфорт и безопасность при его эксплуатации.
- индикация используемой мощности горелки и температуры горячей воды; - функция самодиагностики неисправностей; - электронный розжиг с ионизационным контролем; - плавное электронное зажигание; - электронная плавная модуляция пламени горелки; - постоянная ионизация и контроль пламени; - функция защиты от блокировки насоса; - защита от замерзания; - защита от избыточного давления воды в системе отопления (3 атм); - встроенный манометр отображает давление в системе отопления; - функция контроля за безопасным удалением продуктов сгорания (контроль тяги и защита от перегрева); - защита от перегрева воды в теплообменнике; - защита от образования накипи; - защита от нарушения циркуляции; - самый высокий класс безопасности по электрике IP5XD; - автоматический by-pass; - котел работает при min давлении газа 3,5 до 28 мбар; - котел работает при min давлении водопроводной воды 0,3 бар или 2 л/мин; - не требуется соблюдение полярности при подключении котла в сеть; - возможность подключения внешней автоматики (комнатные термостаты). Создание недельных и дневных комфортных программ; - встроенный ручной кран подпитки системы отопления; - управление котлом через интернет или gsm телефонию; - адаптация к маленьким помещениям от 35 м2.
| Количество контуров | Одноконтурный |
| Камера сгорания | Закрытая |
| Площадь обогрева, м2 | 280 |
| Вид котла | Конвекционный |
| Мощность, кВт | 28 |
| Способ установки | Настенный |
| Потребляемая мощность, Вт | 140 |
| КПД, % | 93,1 |
| Диаметр подключения дымохода, мм | 60/100 |
| Количество теплообменников | 1 |
| Максимальная температура горячей воды, °C | 60 |
| Материал первичного теплообменника | Медь |
| Подключение контура отопления, дюйм | 3/4 |
| Давление в контуре отопления, бар | 3 |
| Диапазон регулировки мощности, кВт | 8,9-24,0 |
| Подключение патрубка газа, дюйм | 3/4 |
| Производительность горячего водоснабжения, л/мин | (∆T 30°C)=11,5 |
| Расширительный бак, л | 6 |
| Максимальная температура в контуре отопления, °C | 90 |
| Гарантия, мес | 30 |
| Вес, кг | 29 |
| Размер (ВхШхГ) | 710х420х245 |
| Страна производства | Беларусь |
| Циркуляционный насос | Да |
ИИ дополнение
[ Полезные статьи ]
Танго трех насосов или как не устроить «мордобой» в трубах системы отопления дома — Гидрострелка
Разворачиваем «инженерный танцпол». Сейчас я тебе за 2 минуты «прошью» в память логику Гидрострелки так, что ты будешь чувствовать её вибрацию в кончиках пальцев. Забываем скучные учебники. Включаем трек «De Paris» на максимум и выпускаем Ирину «Сестру-Зажигалку»! Она сейчас станцует тебе теорию потоков. А Юра «Брат-Насос» сыпанёт цифрами фактов.
Читать статью
Как заменить напольный газовый котёл на настенный
Именно как на фото АОГВ котёл мы заменяли у тестя на настенный Аристон. Как и любое оборудование, газовые котлы имеют определённый заявленный срок эксплуатации. Поэтому, многие сталкиваются с решением вопроса по согласованию всех необходимых процедур.
Читать статью
Топ 5 самых популярных газовых котлов.
Каждый владелец частного дома сталкивается с необходимостью выбора газового котла для отопления. Мы постарались описать ТОП-5 популярных моделей отопительных газовых котлов среди наших покупателей.
Читать статью
Ставим газовый котел на кухню
У вас нет помещения под котельную и вы не знаете куда установить газовый котел. Мы поможем вам разобраться с данным вопросом.
Читать статью
Как купить котёл, выбрать и установить?
Сегодня купить котел легко – сложно выбрать: огромное предложение по производителям Vaillant, Ariston, Bosch, Junkers, Viessmann, Protherm, Daewoo и др., одно и двухконтурные, с ... и без ..., да и цена от ... и до ... А ещё его установить и обвязать ... Как же выбрать то?
Читать статью
Купить газовый котел в Минске легко, но выбрать сложно
Много походить придётся прежде чем купить газовый котел в Минске. Тьма магазинов и моделей, подойти надо со всем вниманием к выбору – это сердце дома. Если что-то не так, и заменить его на другой, и смириться с неудобствами становится одинаково болезненным. Сначала определим мощность котла, функции (отопление или ГВС - одноконтурный или двухконтурный), исполнение - настенный или напольный, систему дымоудаления - с закрытой или открытой камерой сгорания ...
Читать статью
Пропало электричество и газовые котлы потухли ...
Постоянно слышим, что "270 населенных пунктов осталось без электричества" – так это же и газовые котлы отопления тухнут не на час, а на дни. Современный котел прекрасен, но без электричества не работает циркуляционный насос и котел с электроподжигом. Источник бесперебойного питания, он же ИБП и USP, котлу нужен больше, чем компьютеру.
Читать статью
Выбор газового котла - купить этот или этот котёл?
Как выбрать и купить газовый котел? Что предпочесть: настенный или напольный котел, с закрытой камерой сгорания или открытой, двухконтурный или одноконтурный. Вот в чем вопрос.
Читать статью

Минск, Калиновского, 3
+375 (29) 370-38-32

кв. м: