Твердотопливный котел МАЯК ЕCО MANUAL 95 кВт
Твердотопливный котел МАЯК ЕCО MANUAL 95 кВт
водяная рубашкаТвердотопливный котел МАЯК ЕCО MANUAL 95 кВт
| Вид топлива: | дрова, уголь, торф, пеллеты |
кв. м: | от 400 |
| Теплообменник: | Сталь |
| Регулирование: | автоматика |
| Бренд: | Маяк () |
Нет в наличии, но есть решение. Позвоните нам
Подробнее
Котлы МАЯК Еco Manual - это универсальные твердотопливные котлы, предназначенные для обогрева помещений площадью до 950 м 2 : котеджа , СТО, склада, производственного помещения.
Котлы предназначены для работы на различных видах твердого топлива антраците, каменном и буром угле, дровах, брикетах или пеллете (комплектация котла пеллетной горелкой - опция).

| Мощность | кВт | 95 |
| КПД | % | 75 – 85 |
| Расход топлива | кг/ч | 14,4 |
| Продолжительность горения | ч | 8 – 24 |
| Потребляемая мощность | Вт | 320 |
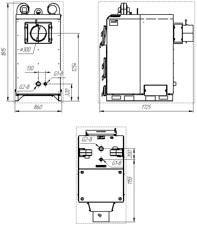
| Габариты загрузочного люка | мм | 476 х 330 |
| Диаметр дымоходного патрубка | мм | 300 |
| Объем воды в котле | л | 306 |
| Объем топки | л | 372 |
| Габариты топки: | ||
| - глубина | мм | 650 |
| - ширина | 690 | |
| - высота | 830 | |
| Габариты котла: | ||
| - глубина | мм | 1860 |
| - ширина | 940 | |
| - высота | 1830 | |
| Вес | кг | 975 |
Основные особенности:
Корпус изготовлен из пластичной низколегированной стали 09Г2С толщиной 6 мм. Снаружи стенки покрыты качественной порошковой краской, которая защищает поверхность от коррозии.
Под внешним кожухом проложен слой теплоизолирующего материала. Это предотвращает рассеивание тепла и защищает стенки от перегрева, а владельцев – от ожогов при случайном прикосновении.
Многоходовой конвективный газоход с водяными полками обеспечивает максимально эффективный нагрев теплоносителя, а объемная топка – до 2-х суток непрерывного горения.
Горение происходит на водонаполненных колосниках, выполненных из бесшовной цельнотянутой трубы.
Дополнительный воздух в топку попадает через форсунки, которые обеспечивают его оптимальное распределение по зоне горения и дают максимальный эффект от сжигания топлива.
На дымоотводном патрубке предусмотрен шибер и небольшой люк для чистки.
Отопительный агрегат предусматривает возможность работы в комплексе с датчиком комнатной температуры, также он оснащен регулируемыми ножками для более простой горизонтальной установки.
Котел укомплектован современной автоматикой (блок управления Krypton и вентилятор наддува), которая поддерживает температуру и управляет двумя насосами, а также автоматизированной пеллетной горелкой (опция).
Преимущества:
- Автоматическое регулирование температуры;
- Толщина теплообменника 6мм;
- Чугунные колосники;
- Качественная теплоизоляция;
- Регулируемые ножки и дверцы;
- КПД не менее 85%;
- Увеличенный объём загрузочной камеры;
- Современный дизайн и качественная порошковая покраска;
- Возможность работы на различных марках углей, дровах или брикете в режиме ручной загрузки;
- Возможность установки пеллетной горелки.
Покупая твердотопливный котел МАЯК Еco Manual в нашем магазине, Вы получаете возможность дополнительно установить пеллетную горелку. При монтаже мы используем наше ноу хау - подкатное устройство, позволяющее обеспечить быстрый переход с дров на пеллеты и обратно.



Расход пеллет для отопления:
Комплектация:
- Котел;
- Опоры для котла;
- Кочерга и совок;
- Заслонка в сборе (со шпилькой и ручкой);
- Паспорт, инструкция по эксплуатации.
Гарантийный срок 36 месяцев.
Производитель АО "Маяк" 63401, Украина, Харьковская обл., г. Змиев, ул. Зализнычна, 120.
ИИ дополнение
[ Сопутствующие товары ]




[ Полезные статьи ]
Танго трех насосов или как не устроить «мордобой» в трубах системы отопления дома — Гидрострелка
Разворачиваем «инженерный танцпол». Сейчас я тебе за 2 минуты «прошью» в память логику Гидрострелки так, что ты будешь чувствовать её вибрацию в кончиках пальцев. Забываем скучные учебники. Включаем трек «De Paris» на максимум и выпускаем Ирину «Сестру-Зажигалку»! Она сейчас станцует тебе теорию потоков. А Юра «Брат-Насос» сыпанёт цифрами фактов.
Читать статью

Минск, Калиновского, 3
+375 (29) 607-38-32

кв. м: